Продам кафе-бар біля ДК Краз (№ 2-497-719)
Ціна: 56 000 $

Адреса: Проспект Свободи, 32а, Кременчук, Кременчуцький, Полтавська
Характеристики
| Ціна: | 56 000 $ |
|---|---|
| № об'єкта: | 2-497-719 |
| Тип: | кафе, бар, ресторан |
| Поверх: | 1 / 1 |
| Площа: | 300 м2 |
| Ділянка: | 3 сот |
Опис
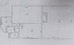
Продається комерційне приміщення ( кафе-бар з прибудовою ) біля П.К. Краза по пр. Свободи 32а
Приміщення має прибудову.
Загальна площа 229.5 м.кв
Зал площею 108,9 кв.м., тамбур площею 4,3 кв.м., зал площею 57,3 кв.м., зал площею 31,8 кв.м., коридору площею 4,1 кв.м
санвузол 5,2кв.м. та санвузол 4,1 кв.м (чоловічий та жіночий)
кухня 11,5 кв.м., кладова 2.5кв.м.
Вода холодна централізована, бойлер на гарячу воду, мангал
Система відеоспостереження, сигналізація..
Вода холодна централізована, бойлер на гарячу воду,мангал Система відеоспостереження, сигналізація тощо
Продаж готового бізнесу з передачею всіх прав
За всіма питаннями звертатися за вказаним номером телефону в зручний для вас час.


























